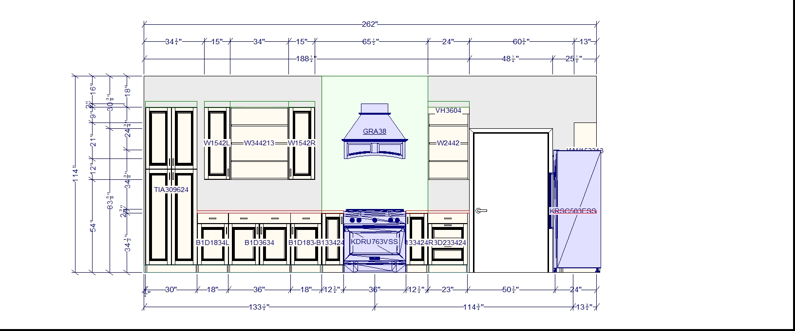
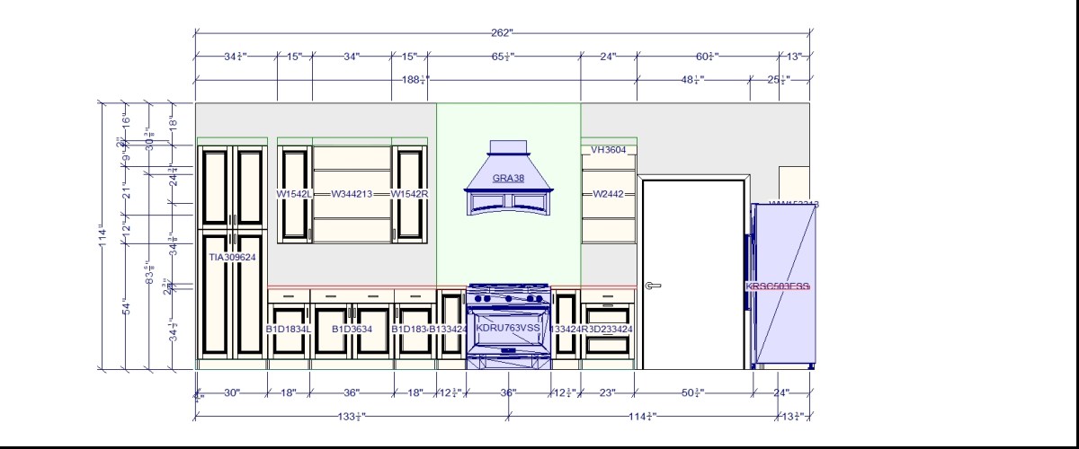
Krycinski.Detailed Previous Next Published April 19, 2017 at 1632 × 681 in The Ideal Collaboration| Boonsboro Kitchen Discover more from Sarah Krycinski Subscribe to get the latest posts sent to your email. Type your email… Subscribe